
Pont roulant électrique à poutre simple à une poutre européenne de type HD
Le pont roulant européen à poutre unique est une machine de levage compacte conçue et fabriquée en stricte conformité avec les normes FEM et DIN, avec une technologie avancée et un design magnifique. Divisé en type général et type de suspension, soutenant l'utilisation d'un palan électrique de norme européenne, adapté à la manutention de matériel d'atelier et d'entrepôt, assemblage de précision de grandes pièces et d'autres endroits.
Pont roulant électrique à poutre simple à une poutre européenne de type HD
Brève description:
Le pont roulant européen à poutre unique est une machine de levage compacte conçue et fabriquée en stricte conformité avec les normes FEM et DIN, avec une technologie avancée et un design magnifique. Divisé en type général et type de suspension, soutenant l'utilisation d'un palan électrique de norme européenne, adapté à la manutention de matériel d'atelier et d'entrepôt, assemblage de précision de grandes pièces et d'autres endroits.

Il pourrait largement utilisé dans la fabrication de machines, la métallurgie, le pétrole, la pétrification, le port, le chemin de fer, l'aviation civile, la nourriture, la fabrication de papier, la construction, les industries électroniques atelier, entrepôt et autres situations de manutention, esp. Appliqué à la manutention des matériaux nécessitant un positionnement précis, les grands composants précisent leur situation d'assemblage.

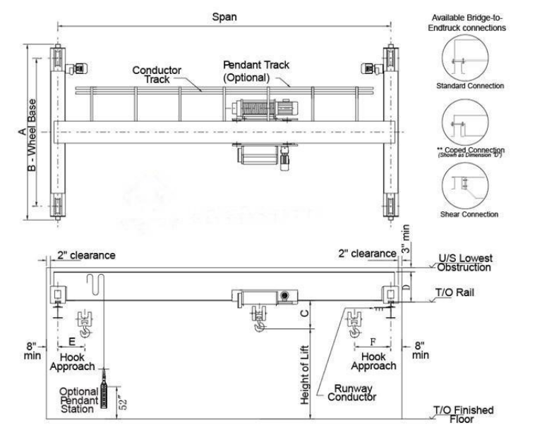
Images détaillées:

Dessin Esquisse:

Paramètres techniques:
Envergure | m | 7.5 | 10,5 | 13.5 | 16.5 | 19,5 | 22,5 | 25,5 |
Capacité | t | 1 ~ 12,5 t | ||||||
Poids total | kg | 1781 ~ 12086 | ||||||
Poids du chariot | kg | 405 ~ 740 | ||||||
Max. Charge de roue | kn | 13,5 ~ 90,94 | ||||||
Rail de voyage | P24 ~ P43 | |||||||
Vitesse de levage | m / min | 0.8 / 5 | 0.8 / 5 | 0.8 / 5 | 0.8 / 5 | 0.8 / 5 | 0.8 / 5 | 0.8 / 5 |
Hauteur de levage | m | ≥ 6 | ≥ 6 | ≥ 6 | ≥ 6 | ≥ 6 | ≥ 6 | ≥ 6 |
Puissance motrice totale | kw | 4.31 | 4.31 | 4.31 | 4.31 | 4,67 | 4,67 | 4,67 |
Vitesse de la grue | m / min | 3-30 | 3-30 | 3-30 | 3-30 | 3-30 | 3-30 | 3-30 |
Vitesse du chariot | m / min | 2-20 | 2-20 | 2-20 | 2-20 | 2-20 | 2-20 | 2-20 |
Devoir de travail | M5 / A5 | |||||||


English
Eesti
עברית
हिंदी
русский
Lietuvių
Norsk
Bai Miaowen
România limbi
Kreyòl Ayisyen
한국어
slovenčina





